Projekt: Hintertal

In der Gemeinde Oberried soll für ein Speditions- und Busunternehmen ein Neubau mit Fahrerwohnungen und Lagerflächen entstehen. Wir wurden hierfür für alle Leistungsphasen beauftragt und freuen uns das Projekt weiter zu betreuen.

Projekt: Obertal

Um mehr Wohnraum in einer Dachgeschosswohnung zu schaffen wurde eine Dachgaube geplant und der Bauantrag hierfür eingereicht.

Projekt: Energetische Sanierung eines EFH mit Einliegerwohnung in Kirchzarten

In Kooperation mit dem Architekturbüro Dipl. Ing. Martin Götz haben wir gemeinsam mit der Bauherrin das Bestandsgebäude weiterentwickelt.

Die energetische und gestalterische Sanierung haben wir bisher im Entwurf und der Genehmigungsplanung betreut. Wir freuen uns künftig auch die Werkplanung für das Objekt zu übernehmen.

Bestehende Gebäude weiter zu entwickeln ist ein essenzieller Baustein, um die bereits im Gebäude gebundene, graue Energie zu erhalten.

Projekt: Freiburg - Lehen

Bei diesem Projekt sind wir für eine Vorentwurfsstudie beauftragt. Gemeinsam mit der Bauherrschaft werden wir versuchen die Wünsche in Vereinbarung mit dem Baurecht und den Gegebenheiten des Grundstückes sowie dem Städtebau zu vereinen.

Es soll ein barrierefreies Haus für altersgerechtes Wohnen entstehen sowie eine Einliegerwohnung mit Tiefhof, über welchen viel natürliches Licht in die Wohnung gelangen kann.

Wir sind gespannt die Entwurfsergebnisse zu präsentieren…

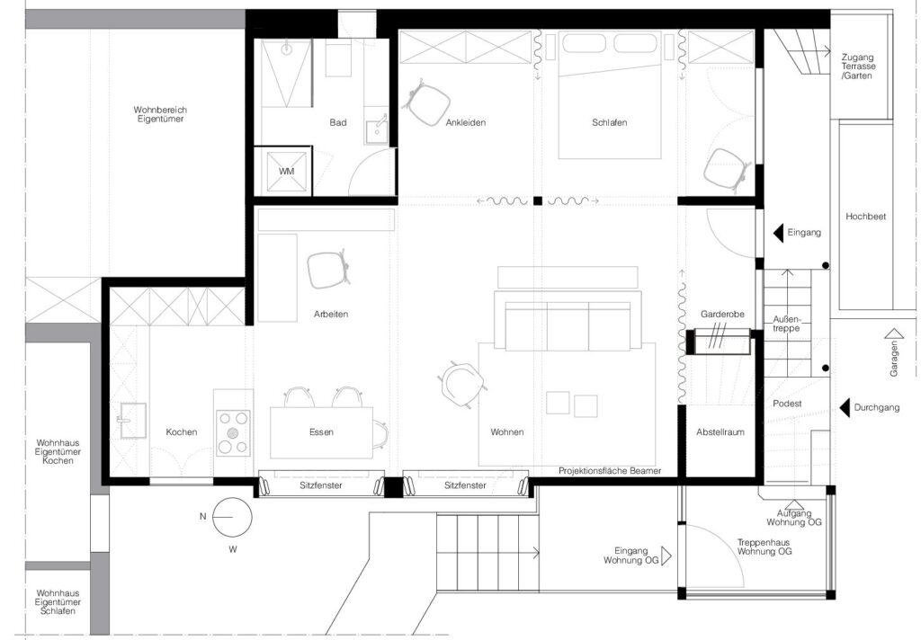
Arbeit: Sanierung einer Wohnung

Die Auswahl einiger Arbeiten, soll das Wirken und die Arbeit unserer Architektinnen vor der Bürogründung zeigen.

Diese Arbeit zeigt den Umgang mit dem Bestand, das Gebäude von 1972 wurde durch gezielte Eingriffe in die heutige Zeit getragen.

Ein offenes Wohnkonzept wird seitlich von dienenden Räumen flankiert. Die Verwendung von Vorhängen ist nicht nur eine preisgünstige alternative zu massiven Wänden, auch trägt dies zu einem flexiblen und wandelbaren Innenraum bei. Die Schreinerarbeiten wie eingebaute Regale, die Garderobe sowie die Sitzfenster runden die Gestaltung im einheitlichem Farb- und Materialkonzept ab.

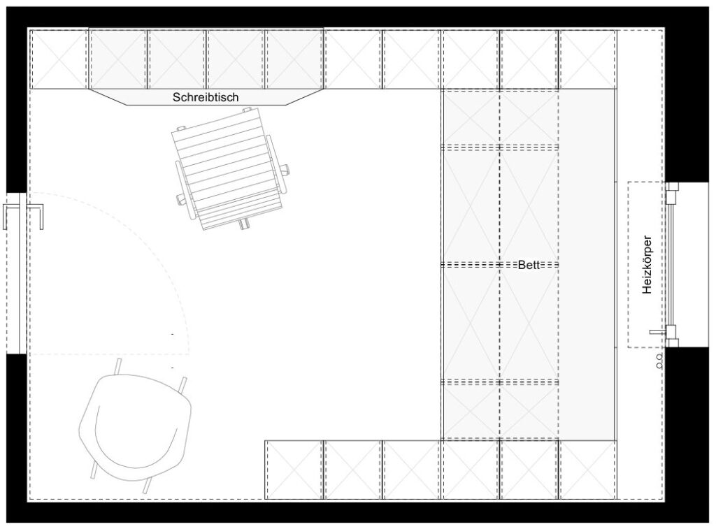
Arbeit: Studentenzimmermöbel

Die Auswahl einiger Arbeiten, soll das Wirken und die Arbeit unserer Architektinnen vor der Bürogründung zeigen.

Das modulare Studentenzimmer ist bereits ein Studienwerk und wurde aus der Situation eines 9,8qm großen Studentenzimmers heraus geboren. In dem modularen System sind sämtliche Bedarfe integriert. Das Bett, um ein Rasterfeld erhöht, um Stauraum darunter zu schaffen, der Schreibtisch, Kleiderschrank, Drucker und sogar der Papierkorb als Ausziehfach.

Durch das modulare System sind die Möbel heute noch in Benutzung, und wurden schon unzählige Male neu arrangiert.

Die Produktion fand regional in einer Schreinerei statt.

Nach oben scrollen